
2023 Wessex Allure
LUXURY LODGE AVAILABLE TO ORDER
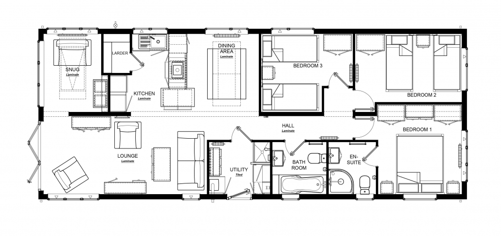
50 x 22
3 Bed
£249,950
The striking exterior benefits from an architectural split-level roofline, feature lighting, full-height windows and one set of bi-fold doors to the lounge area.
On entering through a welcoming, country-style front door, all family members are catered for. There’s a boot seat, plenty of storage and there’s also a dog shower*! No need for dirty paws to traipse through into the main living space, but if they do, it doesn’t matter thanks to a practical choice of laminate flooring.
Through into the spacious open-plan living space with its white panelled vaulted ceilings and there’s a wonderful warm and cosy feel. The snug, which benefits from extensive feature glazing and includes a comfy love seat and beanbag, provides a wonderful space to snuggle down with a good book. Through into the lounge and there’s a comfortable sofa and two cosy armchairs to sink into. Here, the bi-fold doors allow natural light to flood in; a fantastic feature for making the most of a view and to extend the living space outside.
- White panelled vaulted ceilings throughout and internal feature beam
- Open-plan living space incorporating lounge, dining and kitchen areas
- Snug with full-height windows, skylight, love seat, beanbag, set of three rattan trunk benches, designer wall-lights and larch built-in bookshelves with feature wallpaper behind
- Entrance with dog shower facilities, large bench with wicker storage baskets, mirror with coat hooks, washing machine and additional storage. This model is also available with a standard utility room / entrance at no extra cost.
- Lounge with one set of bi-fold doors, Elliot style lounge suite and cottage-style white painted furniture with lime-washed tops including a coffee table, sideboard and TV unit
- Kitchen with large walk-in pantry, ceramic sink and central work space between the kitchen and dining areas with five-burner hob and island extractor
- Integrated premium branded appliances including a fridge-freezer, microwave, single electric oven and dishwasher
- Fitted kitchen units with soft / self close doors and drawers.
- White cottage style extending dining table with lime-washed top and two benches; dining area over-lit by a designer box pendant light
- Laminate flooring and fully lined curtains and Roman blinds to the main living space
- Large master bedroom with full-height windows, waxed oak king-size bedstead, bedside cabinets, chest of drawers, freestanding gents and hanging wardrobes and large mirror and Pavilion style fuschia upholstered chair
- En-suite with fitted 1700 bath, quadrant shower cubicle with minimalist handset and vanity unit with counter-top basin
- Second bedroom with white painted twin beds, freestanding wardrobe, bedside cabinet and mirror
- Family shower room with vanity unit with counter-top basin and large shower enclosure
- Hessian backed carpet with underlay to bedrooms
Wessex Allure Floor Plan





















